Skip to main content
English
Deutsch
projects
studio
contact
Videos
TYPE
art
business
corporate identity
education
interior design
living
protected
urban planning
STATUS
competition
completed
recent
project
YEAR
70
80
90
00
10
20
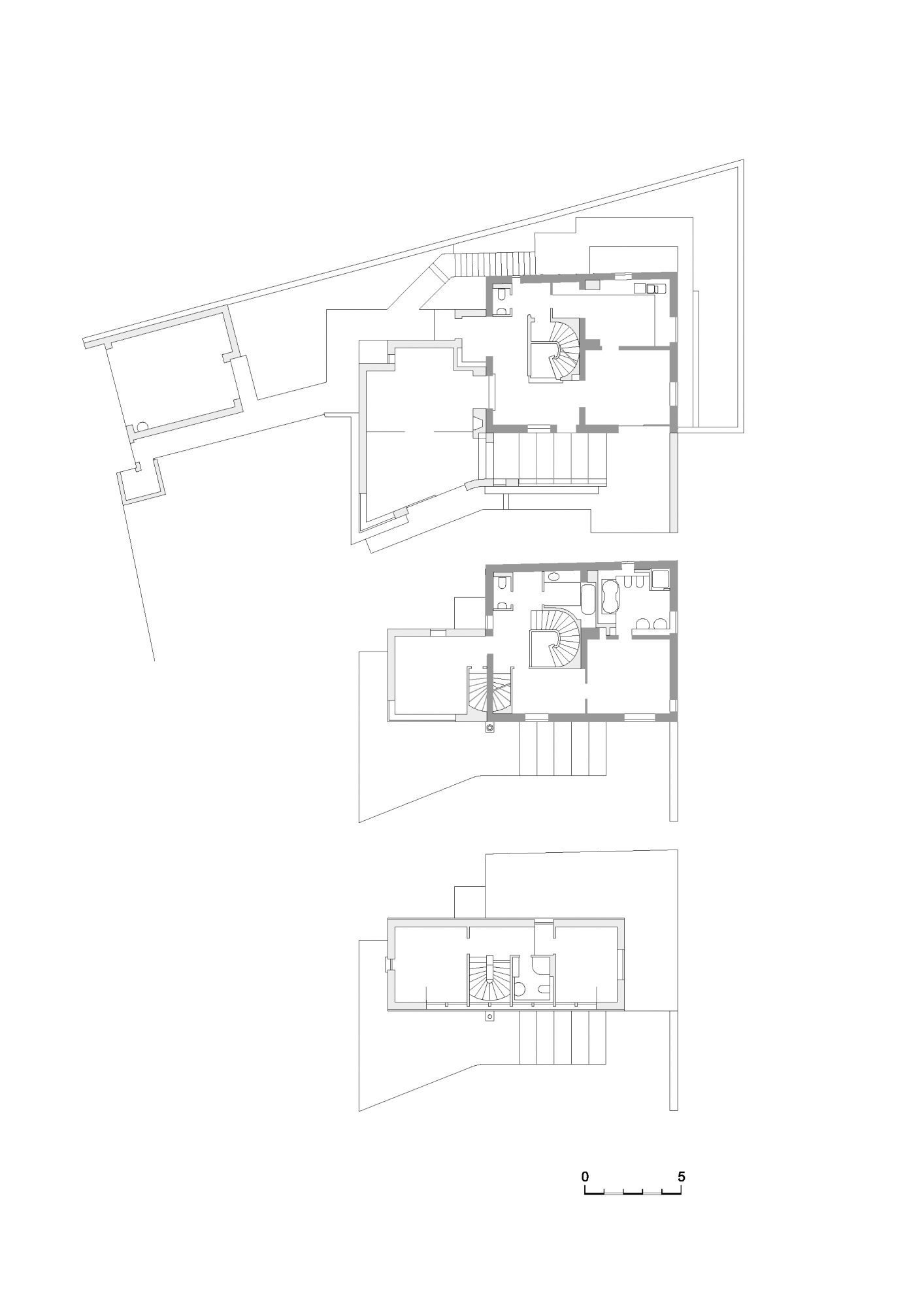
HOUSE ON THE GOLDBIEGELBERG
2380 Perchtoldsdorf
1992 - 1994
TEXT
PHOTOS
PLANS
change view