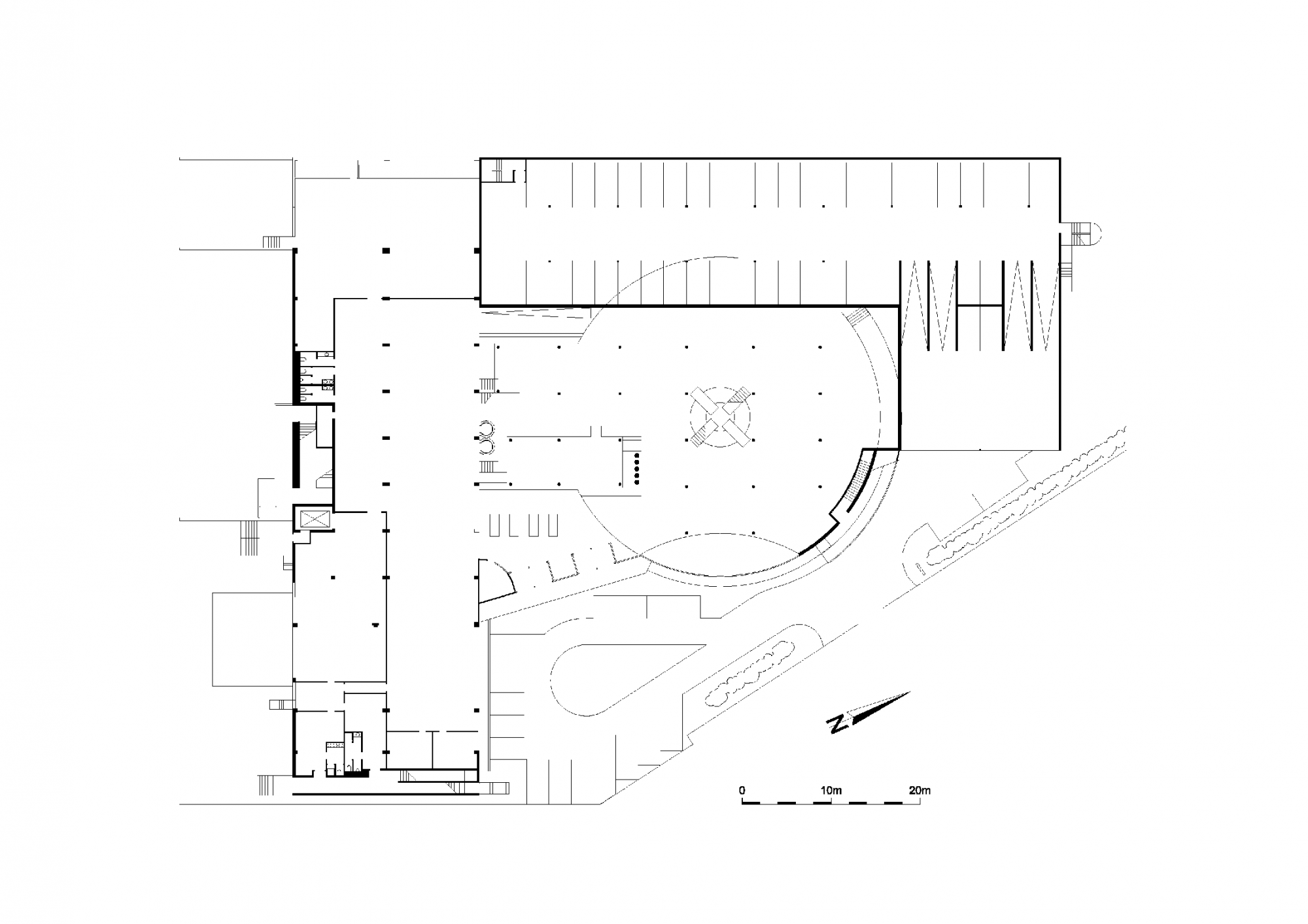
EYBL SPORTS EQUIPMENT
2331 Vösendorf
1994
TEXTPHOTOSPLANS