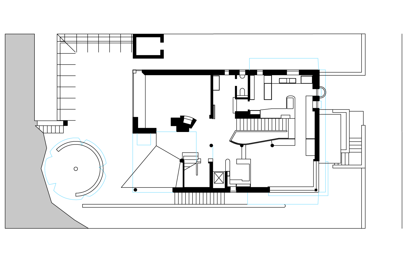
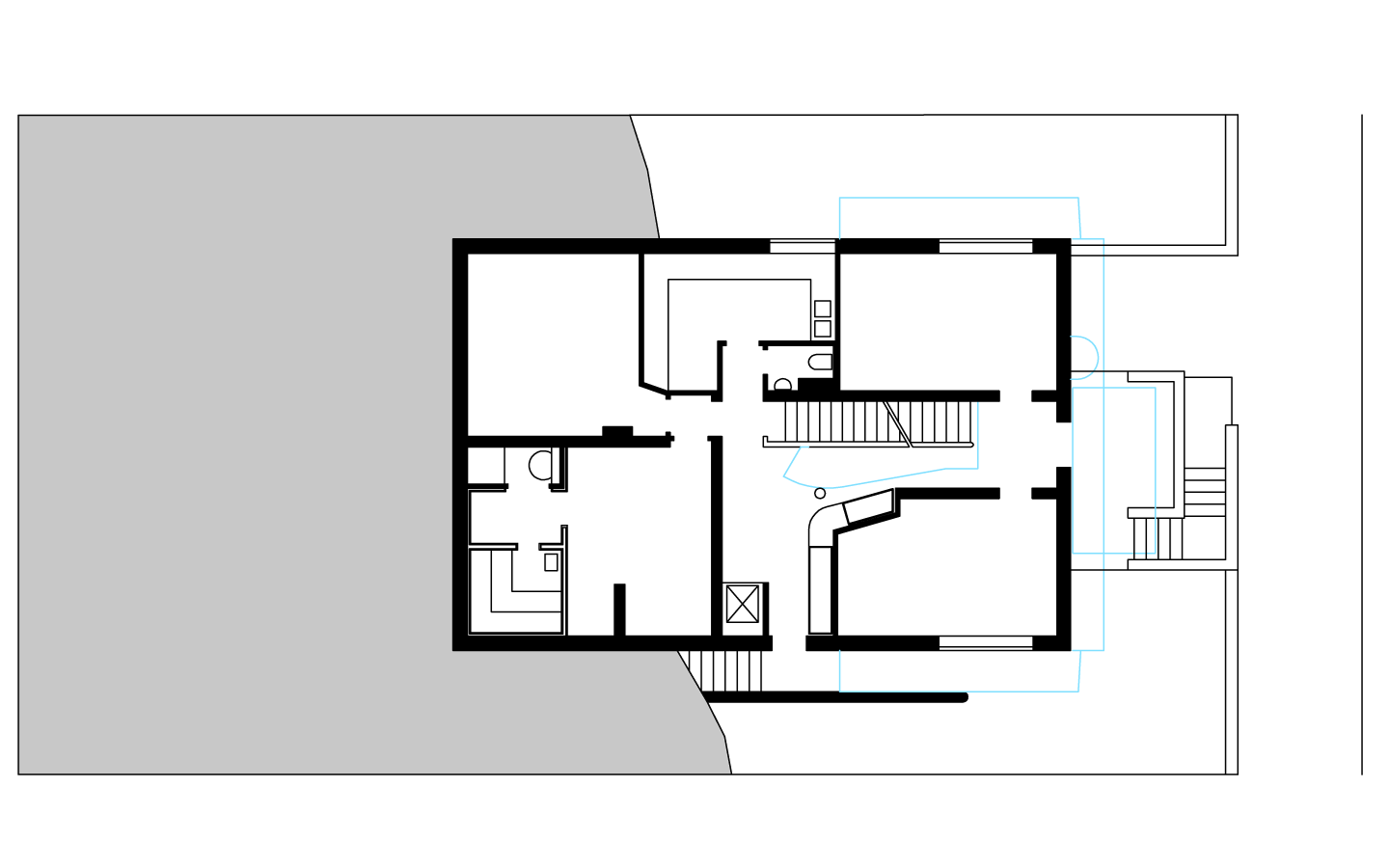
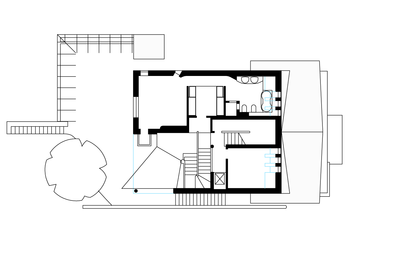
Haus in Ober St. Veit
1130 Wien
1989 - 1991
TEXTFOTOSPLÄNE